Domki Marysia
Dom Kampinos
Dom Kampinos
Dom Kampinos - Nowoczesna Stodoła w Sercu Natury
Zapraszamy do zapoznania się z wyjątkowym projektem Kampinos – idealnym połączeniem współczesnej architektury z przytulnym, domowym charakterem. To propozycja dla rodzin ceniących przestrzeń, funkcjonalność i styl nowoczesnej stodoły.
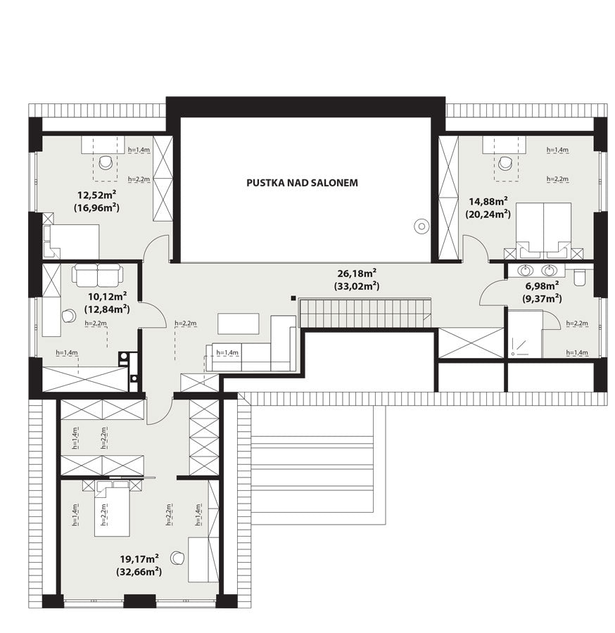
Charakterystyka budynku: Dom o powierzchni użytkowej 196 m² usytuowany na planie litery L, przykryty efektownym dwuspadowym dachem. Nowoczesną stylistykę podkreślają ogromne przeszklenia w strefie dziennej oraz podwyższony salon z antresolą, które zapewniają niepowtarzalny klimat wnętrza i doskonałe doświetlenie.
Rozkład pomieszczeń:
- Strefa dzienna: przestronny salon połączony z jadalnią, funkcjonalna kuchnia (z możliwością zamknięcia) oraz spiżarnia
- Strefa nocna: 5 sypialni (w tym duża sypialnia z garderobą na parterze), 3 łazienki, gabinet na poddaszu
- Strefa gospodarcza: dwustanowiskowy garaż oraz kotłownia
- Dodatkowe udogodnienia: duży taras z wyjściem z salonu, kuchni i sypialni, rekuperacja w standardzie
Atuty projektu: ✓ Funkcjonalny układ dla rodziny 4-6 osobowej ✓ Liczne przeszklenia zapewniające kontakt z naturą ✓ Nowoczesna architektura w stylu stodoły ✓ Energooszczędne rozwiązania (rekuperacja) ✓ Przestronny taras idealny do relaksu
Technologia wykonania: Solidna konstrukcja z dwuwarstwowych ścian (pustak ceramiczny z dociepleniem), stropy żelbetowe, dach pokryty blachą. Elewacja z tynku i szalówki.
Domek Kampinos to doskonały wybór dla tych, którzy pragną połączyć komfort nowoczesnego życia z urokiem wiejskiej architektury.
Check Available Options
Check Available Options
In each of our projects, changes are possible: both in the interior layout and in the colors of the windows, facades and roof.
















Home Construction Technologies
-
Timber frame technology
See detailsEcological, quick to assemble and cozy – a wooden structure is the perfect solution for a seasonal or year-round home.
-
Expanded clay concrete technology
See detailsDurable, quiet and fire-resistant – a prefabricated expanded clay concrete structure is the choice for those looking for durability that will last for generations.