Domki Marysia
Helen
Helen
Helen – nowoczesny projekt domu z użytkowym poddaszem
Projekt domu Helen to propozycja parterowego budynku z użytkowym poddaszem, który doskonale wpisuje się w nurt nowoczesnej architektury. Dzięki starannie przemyślanemu układowi funkcjonalnemu i minimalistycznej bryle, ten niewielki dom zapewni komfort mieszkania nawet 4-osobowej rodzinie, a jednocześnie jest tani w budowie i eksploatacji.
Funkcjonalność i oszczędność
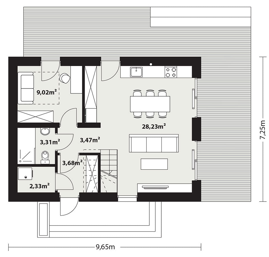
Pomimo powierzchni zabudowy do 70 m², dom Helen oferuje doskonałe zagospodarowanie przestrzeni. Parter to przestronna strefa dzienna obejmująca otwarty salon, jadalnię i kuchnię – idealne miejsce do wspólnego spędzania czasu. Znajduje się tu również dodatkowy pokój, który można dostosować do potrzeb mieszkańców, łazienka oraz praktyczne pomieszczenie gospodarcze z miejscem na pompę ciepła.
Na poddaszu zaplanowano trzy funkcjonalne sypialnie, łazienkę oraz pralnię, co zapewnia mieszkańcom wygodę i prywatność.
Design, który przyciąga wzrok
Nowoczesny charakter budynku podkreśla minimalistyczna bryła, dwuspadowy dach bez okapów oraz elewacja łącząca blachę na rąbek w antracytowym kolorze, ciemne płytki oraz naturalne panele drewniane. Duże przeszklenia wprowadzają do wnętrza mnóstwo naturalnego światła, jednocześnie pozwalając na podziwianie otaczającego krajobrazu.
Przemyślany układ i dodatkowe udogodnienia
Dom wyróżnia się dużym tarasem w kształcie litery L, który okala budynek z dwóch stron, zwiększając jego funkcjonalność i dając więcej przestrzeni do relaksu na świeżym powietrzu. Bryła domu na planie prostokąta idealnie sprawdza się na niewielkich działkach, maksymalizując wykorzystanie przestrzeni.
Zalety budowy na zgłoszenie
Powierzchnia zabudowy do 70 m² pozwala na budowę domu Helen na zgłoszenie, bez potrzeby uzyskania pozwolenia na budowę, prowadzenia dziennika budowy czy zatrudniania kierownika budowy. Dzięki temu proces budowy jest szybszy i mniej kosztowny.
Ekonomia i komfort w jednym
Projekt Helen łączy nowoczesny design, funkcjonalność i rozwiązania oszczędne zarówno w budowie, jak i w codziennym użytkowaniu. To idealny wybór dla osób ceniących komfort, styl oraz racjonalne podejście do planowania przestrzeni mieszkalnej.

✅ Format PDF - czytaj na dowolnym urządzeniu
✅ Dożywotni dostęp do materiałów
Technologie Budowy Domu
-
Technologia szkieletu drewnianego
Zobacz szczegółyEkologiczna, szybka w montażu i przytulna – drewniana konstrukcja to idealne rozwiązanie na dom sezonowy lub całoroczny.
-
Technologia z keramzytobetonu
Zobacz szczegółyWytrzymała, cicha i odporna na ogień – prefabrykowana konstrukcja z keramzytobetonu to wybór dla tych, którzy szukają trwałości na pokolenia.