Domki Marysia
Gabi 3
Gabi 3
Gabi 3
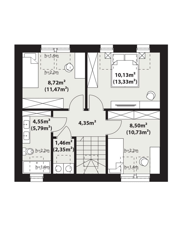
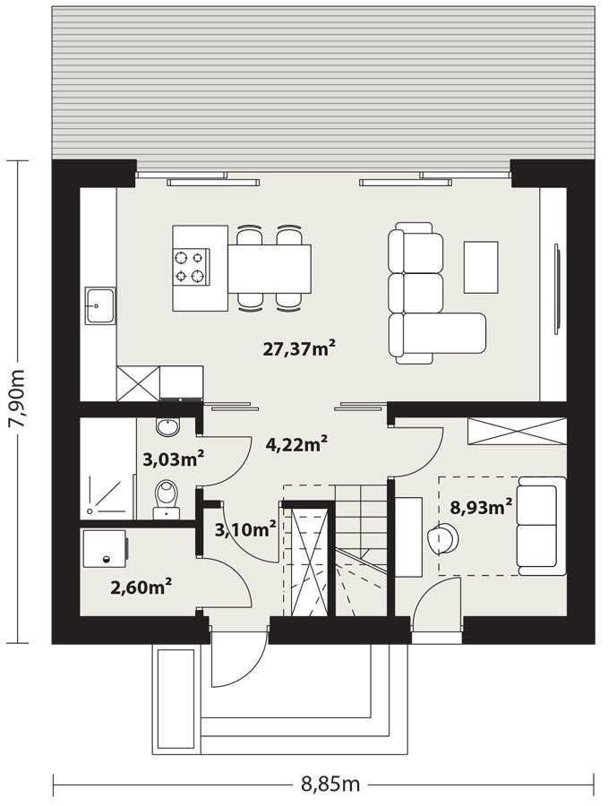
Gabi 3 to projekt niedużego domu parterowego z użytkowym poddaszem, który wpisuje się w nurt nowoczesnej architektury. Pomimo niewielkich rozmiarów projekt ten zapewnia pełen komfort mieszkania nawet 4-osobowej rodzinie. To niewielki dom o idealnie rozplanowanym układzie funkcjonalnym i nowoczesnym wyglądzie. Uwagę przykuwa blacha na rąbek w kolorze antracytowym zestawiona na zasadzie kontrastu z białym tynkiem i ciepłym naturalnym drewnem. Zastosowane materiały nadają oryginalnego charakteru. Duże przeszklenia pozwalają na wprowadzenie do wnętrza dużych ilości naturalnego światła, co nie tylko sprawia, że pomieszczenia są jaśniejsze, ale także umożliwia cieszenie się widokiem otaczającego krajobrazu. Prosta, minimalistyczna bryła na rzucie prostokąta, dwuspadowy, bezokapowy dach oraz powierzchnia zabudowy nie przekraczająca 70m2 to gwarancja niewielkich kosztów budowy. Daje to możliwość jego budowy na zgłoszenie, bez pozwolenia na budowę. Dodatkowo stolarka okienna została tak zaprojektowana, że możliwa jest budowa tego domu na działce o szerokości do 16m. Gabi 3 to projekt nie tylko tani i łatwy w budowie, ale również niezwykle funkcjonalny. Pomimo ograniczonej powierzchni użytkowej, układ funkcjonalny został starannie rozplanowany. Parter stanowi strefę dzienną z otwartą przestrzenią salonu, jadalni i kuchni. Otwarta przestrzeń to doskonałe miejsce do wspólnego spędzania czasu z rodziną. Dodatkowy pokój na parterze może pełnić różne funkcje, zależnie od potrzeb mieszkańców. Na parterze przewidziano również łazienkę oraz pomieszczenie gospodarcze, w którym zaprojektowano pompę ciepła. Na poddaszu zaprojektowano trzy funkcjonalne sypialnie, łazienkę oraz pralnię. Optymalne wykorzystanie przestrzeni na poddaszu umożliwia komfortowe warunki dla mieszkańców. Projekt domu Gabi 3 to doskonałe połączenie nowoczesnego designu, funkcjonalności oraz zrównoważonego podejścia do zagadnień budowlanych, co sprawia, że stanowi on atrakcyjną opcję dla tych, którzy cenią sobie komfort życia w mniejszych, nowoczesnych domach.
Sprawdź Dostępne Opcje
Sprawdź Dostępne Opcje
W każdym z naszych projektów możliwe są zmiany: zarówno układu wnętrza jak i kolorystyki okien, elewacji czy dachu.

Technologie Budowy Domu
-
Technologia szkieletu drewnianego
Zobacz szczegółyEkologiczna, szybka w montażu i przytulna – drewniana konstrukcja to idealne rozwiązanie na dom sezonowy lub całoroczny.
-
Technologia z keramzytobetonu
Zobacz szczegółyWytrzymała, cicha i odporna na ogień – prefabrykowana konstrukcja z keramzytobetonu to wybór dla tych, którzy szukają trwałości na pokolenia.