Domki Marysia
Gabi
Gabi
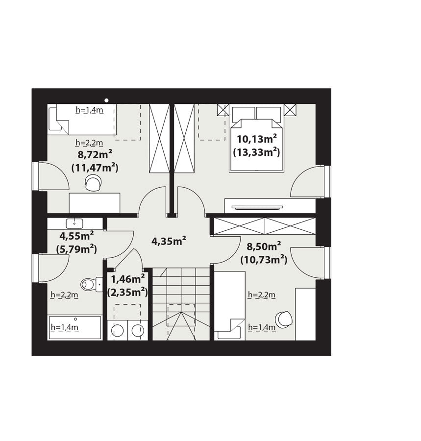
Gabi to projekt niedużego domu parterowego z użytkowym poddaszem, który wpisuje się w nurt nowoczesnej architektury. Pomimo niewielkich rozmiarów projekt ten zapewnia pełen komfort mieszkania nawet 4-osobowej rodzinie. Posiada powierzchnię zabudowy do 70 m2. Daje to możliwość budowy na zgłoszenie według uproszczonej procedury. Projekt jest tani i łatwy w budowie, ale również niezwykle funkcjonalny. Dom wykończono w nowoczesnym stylu. Uwagę przykuwa blacha na rąbek w kolorze antracytowym zestawiona na zasadzie kontrastu z białym tynkiem i ciepłym naturalnym drewnem. Duże przeszklenia pozwalają na wprowadzenie do wnętrza mnóstwa naturalnego światła, co nie tylko sprawia, że pomieszczenia są jaśniejsze, ale także umożliwia cieszenie się widokiem otaczającego krajobrazu. Pomimo ograniczonej powierzchni użytkowej, układ funkcjonalny został starannie rozplanowany. Parter stanowi strefę dzienną z otwartą przestrzenią salonu, jadalni i kuchni. Dodatkowy pokój na parterze może pełnić różne funkcje, zależnie od potrzeb mieszkańców. Na parterze przewidziano również łazienkę oraz pomieszczenie gospodarcze, w którym zaprojektowano pompę ciepła. Na poddaszu zaprojektowano trzy funkcjonalne sypialnie, łazienkę oraz pralnię. Niewątpliwą zaletą projektu jest duży taras zaprojektowany w kształcie litery L. Taras okala dom z dwóch stron, dzięki czemu jest bardziej funkcjonalny. Projekt domu Gabi to doskonałe połączenie nowoczesnego designu, funkcjonalności oraz zrównoważonego podejścia do zagadnień budowlanych, co sprawia, że stanowi on atrakcyjną opcję dla tych, którzy cenią sobie komfort życia w mniejszych, nowoczesnych domach.

✅ Format PDF - czytaj na dowolnym urządzeniu
✅ Dożywotni dostęp do materiałów
Technologie Budowy Domu
-
Technologia szkieletu drewnianego
Zobacz szczegółyEkologiczna, szybka w montażu i przytulna – drewniana konstrukcja to idealne rozwiązanie na dom sezonowy lub całoroczny.
-
Technologia z keramzytobetonu
Zobacz szczegółyWytrzymała, cicha i odporna na ogień – prefabrykowana konstrukcja z keramzytobetonu to wybór dla tych, którzy szukają trwałości na pokolenia.