Domki Marysia
ERNA 2
ERNA 2
ERNA 2
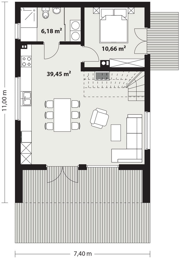
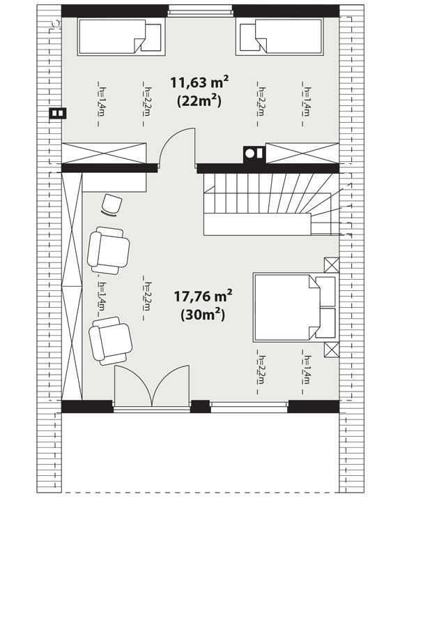
Erna 2 to kompaktowy, nowoczesny i przestronny dom, idealny zarówno jako całoroczny dom jednorodzinny, jak i domek rekreacyjny. Jego powierzchnia zabudowy wynosi 69,5 m², a dzięki funkcjonalnemu układowi oferuje trzy sypialnie oraz otwartą część dzienną, która sprzyja integracji i komfortowi domowników.
Styl "nowoczesnej stodoły" z przeszkleniami w ścianie szczytowej nadaje budynkowi wyjątkowego charakteru, zapewniając jednocześnie doskonałe doświetlenie wnętrza. Wejście do domu prowadzi przez taras, co czyni go idealnym rozwiązaniem na działki z dostępem od strony południowej.
Erna 2 łączy w sobie nowoczesny design, przestronność i funkcjonalność, oferując wygodne i stylowe miejsce do życia lub wypoczynku.

✅ Format PDF - czytaj na dowolnym urządzeniu
✅ Dożywotni dostęp do materiałów
Technologie Budowy Domu
-
Technologia szkieletu drewnianego
Zobacz szczegółyEkologiczna, szybka w montażu i przytulna – drewniana konstrukcja to idealne rozwiązanie na dom sezonowy lub całoroczny.
-
Technologia z keramzytobetonu
Zobacz szczegółyWytrzymała, cicha i odporna na ogień – prefabrykowana konstrukcja z keramzytobetonu to wybór dla tych, którzy szukają trwałości na pokolenia.