Domki Marysia
Marysia's House 01
Marysia's House 01
Modular House Marysia 01
The main concept of this project was to create a compact, modern barn-style house with a rectangular plan. It is characterized by a simple shape with large glazing dominating the façade, reaching a height of up to 6.4 meters. The gable roof is covered with modular anthracite sheet metal.
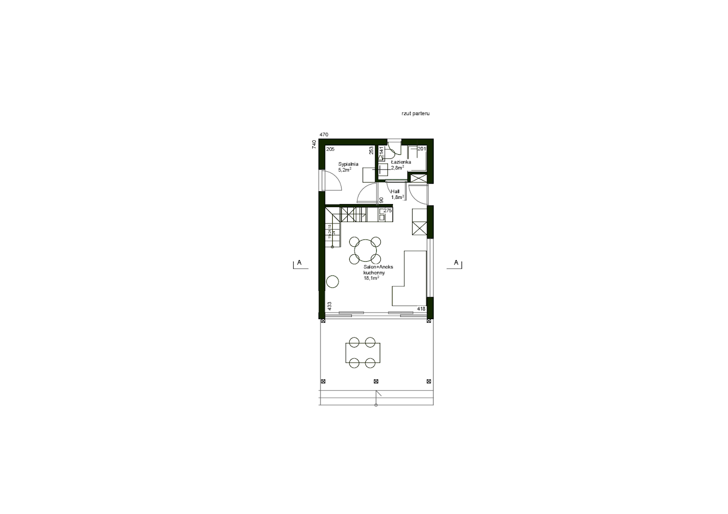
This functional modular house in a modern barn style is perfect for a family of four. It consists of two bedrooms, one of which is on the mezzanine, as well as a kitchenette and a spacious bathroom with a shower cabin.
The mezzanine in this barn house can also function as a living room, study or sunny playroom for children.
BASIC PARAMETERS: |
Usable area | 35.4 m2 |
Net area | 41.1 m2 |
Ridge height | 6.76m |
Minimum plot width/length | 9mx11m |
Number of users | 4 |
Number of bathrooms | 1 |
Check Available Options
Check Available Options
In each of our projects, changes are possible: both in the interior layout and in the colors of the windows, facades and roof.




Home Construction Technologies
-
Timber frame technology
See detailsEcological, quick to assemble and cozy – a wooden structure is the perfect solution for a seasonal or year-round home.
-
Expanded clay concrete technology
See detailsDurable, quiet and fire-resistant – a prefabricated expanded clay concrete structure is the choice for those looking for durability that will last for generations.